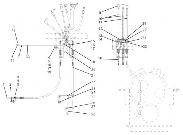
Система высокой и низкой передач и рабочего управления в сборе LG833B

Ном.

Код

Russian Description

Chinese Description

Размер

Количество

Номер оригинала/примечание

1

30805100167

Вилочный соединитель

叉形接头

 

2

LG853.05.02-001

2

30805100166

Фиксаторный опорный

лист

固定支板

 

1

LG853.05.02-002

3

51204101014

болт

螺栓

M10 × 20-8.8

3

GB/T5783

4

51401100107

Прокладка

垫圈

10

8

GB/T93

5

51421100119

Прокладка

垫圈

10

13

GB/T97.1

6

30893100787

Маслопроводный болт

通油螺栓

 

1

LG853.10.06-001

7

30893000550

сварка стальной трубы

钢管焊合

 

1

LG30F.05 Ⅰ0,0200,05

8

56203000301

Маслянка

油杯

90°M10 × 1

1

JB/T7940.2

9

60980000178

Квадратный эбонитовый

шар

方胶木球

M12 × 32

3

LG853.05.02-011

10

30805000018

Ручка управления в сборе

操纵杆总成

 

2

LG853.05.02.03

11

30805000006

Сварка управляющего

рычага

操纵杆焊合

 

1

LG30F.05 Ⅰ0,0200,01

12

30805101212

Опорная шейка

轴座

 

1

LG853.05.02-007

13

60909010015

Маслопроводный болт

通油螺栓

 

1

LG853.05.02-012

14

60980000179

Прокладка

垫圈

10

5

LG853.10.06-005

15

51204101314

болт

螺栓

M10 × 35-8.8

2

GB/T5783

16

51420100119

Прокладка

垫圈

10

3

GB/T96.1

17

51307001019

гайка

螺母

M10-8

3

GB/T6170

18

30805000036

управляющий гибкий вал

в сборе

操纵软轴总成

 

2

LG853.05.02.01

19

51204101214

болт

螺栓

M10 × 30-8.8

3

GB/T5783

20

30805000007

Сварка опор закрепления

固定支架焊合

 

1

LG30F.05 Ⅰ0,0200,02

21

30805000008

управляющий гибкий вал

в сборе

操纵软轴总成

 

1

LG30F.05 Ⅰ0,0200,03

22

30805000009

Сварка опор

支架焊合

 

1

LG30F.05 Ⅰ0,0200,04

23

51204111114

болт

螺栓

M12 × 25-8,8

2

GB/T5783

24

51401110107

Прокладка

垫圈

12

2

GB/T93

25

51421110119

Прокладка

垫圈

12

2

GB/T97.1

26

51511061504

Вал штифта

销轴

B10 × 35

2

GB/T882

27

51512170101

Разводной штифт

开口销

3 × 30

2

GB/T91

28

30805000011

Сварка вилк

拨叉焊合

 

1

LG30F.05 Ⅰ.02.06

29

30805101213

Втулка

衬套

 

3

LG853.05.02-009

30

30805000012

Вал

 

1

LG30F.05 Ⅰ.02-003

31

30805000013

Промежуточное тело

隔套

 

1

LG30F.05 Ⅰ.02-004

32

30805100223

Стопорное кольцо

挡圈

 

2

LG853.05.02-008

33

30893100039

сварка стальной трубы

钢管焊合

 

1

LG853.05 Ⅱ.02.01