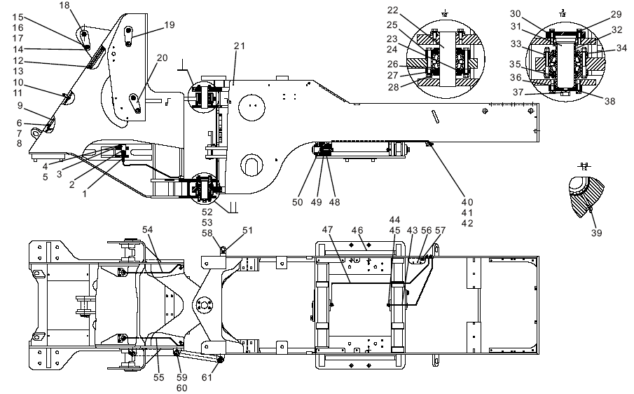
Система шасси LG833B
|
Ном. |
Код |
Russian Description |
Chinese Description |
Размер |
Количество |
Номер оригинала/примечание |
|
1 |
30893100633 |
Соединитель заливания масла |
注油接头 |
2 |
LG853.10-024 |
|
|
2 |
60905000041 |
Поворотный палец |
转向销 |
4 |
LG853.10-015 |
|
|
3 |
30810100792 |
Зажимная пластина |
卡板 |
4 |
LG853.10-014 |
|
|
4 |
51401110107 |
Прокладка |
垫圈 |
12 |
32 |
GB/T93 |
|
5 |
51204111214 |
болт |
螺栓 |
M12 × 30-8,8 |
20 |
GB/T5783 |
|
6 |
51401100107 |
Прокладка |
垫圈 |
10 |
8 |
GB/T93 |
|
7 |
51421100119 |
Прокладка |
垫圈 |
10 |
6 |
GB/T97.1 |
|
8 |
51204101014 |
болт |
螺栓 |
M10 × 20-8.8 |
4 |
GB/T5783 |
|
9 |
30810100080 |
Накладка |
盖板 |
M10-8 |
1 |
LG30F.10 Ⅰ.09-001 |
|
10 |
51307001019 |
гайка |
螺母 |
2 |
GB/T6170 |
|
|
11 |
60907000001 |
Подручник в сборе |
扶手总成 |
1 |
LG853.13.07.01.02 |
|
|
12 |
30861900009 |
Сварка передней рамы |
前车架焊合 |
1 |
LG833.10 V.01 |
|
|
13 |
67206000287 |
Защитная втулка рукава |
胶管保护套 |
2 |
LG853.10-021 |
|
|
14 |
30890900390 |
Сварка заднего штифта бака ковша |
转斗缸后销轴焊合 |
1 |
LG833.10 Ⅴ0,03 |
|
|
15 |
51421150115 |
Прокладка |
垫圈 |
20 |
7 |
GB/T97.1 |
|
16 |
51401150107 |
Прокладка |
垫圈 |
20 |
8 |
GB/T93 |
|
17 |
51204151514 |
болт |
螺栓 |
M20 × 45-8.8 |
5 |
GB/T5783 |
|
18 |
56201000301 |
Маслянка |
油杯 |
M10 ×11 |
11 |
JB/T7940.1 |
|
19 |
30890900391 |
Верхний осеп подвижной стрелки |
动臂上销轴焊合 |
2 |
LG833.10 Ⅴ0,04 |
|
|
20 |
30890900392 |
Сварка штифта цилиндра движущего рычага |
动臂油缸销轴焊合 |
2 |
LG833.10 Ⅴ.05 |
|
|
21 |
30862900006 |
Сварка задней рамы |
后车架焊合 |
1 |
LG833B.10.02 |
|
|
22 |
30890900376 |
Сварка верхнего шарнирного штифта |
上铰接销焊合 |
1 |
LG30F.10 Ⅰ0,06 |
|
|
23 |
51203112618 |
болт |
螺栓 |
M12 × 100-8,8 |
8 |
GB/T5782 |
|
24 |
51307001119 |
гайка |
螺母 |
M12-8 |
8 |
GB/T6170 |
|
25 |
60980000171 |
Проставок |
调整垫 |
1 |
LG30F.10 Ⅰ-010 |
|
|
26 |
52324001001 |
Подшипник |
轴承 |
32212 |
4 |
GB/T297 |
|
27 |
30810102340 |
Крышка подшипника |
轴承盖 |
2 |
LG30F.10 Ⅰ-011 |
|
|
28 |
56161012301 |
Уплотнительное кольцо |
密封圈 |
Fb60 × 80 × 12 |
2 |
GB/T13871.1 |
|
29 |
51204111114 |
болт |
螺栓 |
M12 × 25-8,8 |
4 |
GB/T5783 |
|
30 |
30810102335 |
Крышка |
盖 |
1 |
LG30F.10 Ⅰ-003 |
|
|
31 |
60903000019 |
Нижний шарнирный палец |
下铰接销 |
1 |
LG30F.10 Ⅰ-007 |
|
|
32 |
30810102336 |
Валик-втулка |
轴套 |
1 |
LG30F.10 Ⅰ-004 |
|
|
33 |
60980000170 |
Проставок |
调整垫 |
1 |
LG30F.10 Ⅰ-008 |
|
|
34 |
30810102337 |
Крышка подшипника |
轴承盖 |
2 |
LG30F.10 Ⅰ-005 |
|
|
35 |
56161012201 |
Уплотнительное кольцо |
密封圈 |
Fb70 × 90 × 12 |
2 |
GB/T13871.1 |
|
36 |
30810102339 |
Валик-втулка |
轴套 |
1 |
LG30F.10 Ⅰ-009 |
|
|
37 |
51204153714 |
болт |
螺栓 |
M20 × 35-8.8 |
3 |
GB/T5783 |
|
38 |
30810102338 |
Торцевая крышка |
端盖 |
1 |
LG30F.10 Ⅰ-006 |
|
|
39 |
56202000301 |
Маслянка |
油杯 |
45°M10 × 1 |
2 |
JB/T7940.2 |
|
40 |
51204091114 |
болт |
螺栓 |
M8 × 25-8.8 |
4 |
GB/T5783 |
|
41 |
51401090107 |
Прокладка |
垫圈 |
8 |
4 |
GB/T93 |
|
42 |
51421090115 |
Прокладка |
垫圈 |
8 |
4 |
GB/T97.1 |
|
43 |
30893900385 |
Сварка задней трубы опоры вибрации |
摆动架销后注油管焊合 |
1 |
LG30F.10 Ⅰ0,12 |
|
|
44 |
60980000179 |
Прокладка |
垫圈 |
10 |
4 |
LG853.10.06-005 |
|
45 |
30893100787 |
Маслопроводный болт |
通油螺栓 |
2 |
LG853.10.06-001 |
|
|
46 |
30863900375 |
Сварка качающего каркаса |
摆动架焊合 |
1 |
LG30F.10 Ⅰ0,03 |
|
|
47 |
30893900386 |
Сварка передней трубы опоры вибрации |
摆动架销前注油管焊合 |
1 |
LG30F.10 Ⅰ0,13 |
|
|
48 |
60980000183 |
Медняя прокладка |
铜垫 |
2 |
LG853.10-010 |
|
|
49 |
60916010022 |
Кожух |
套 |
2 |
LG853.10-012 |
|
|
50 |
30890900226 |
Сварка штифта качающего каркаса |
摆动架销焊合 |
2 |
LG853.10.10 |
|
|
51 |
30810000562 |
Сварка крепительного основания маслобака |
油箱固定座焊合 |
2 |
LG855.10.08 |
|
|
52 |
51204133314 |
болт |
螺栓 |
4 |
GB/T5783 |
|
|
53 |
51401130107 |
Прокладка |
垫圈 |
M16 × 50-8.8 |
4 |
GB/T93 |
|
54 |
30893900382 |
Сварка труб инъеккции правой стороны |
右转向销注油管焊合 |
16 |
1 |
LG30F.10 Ⅰ0,10 |
|
55 |
30893900383 |
Сварка труб инъеккции левой стороны |
左转向销注油管焊合 |
M10 × 25-8.8 |
1 |
LG30F.10 Ⅰ.11 |
|
56 |
30810102126 |
Опора фильтра |
油滤清器支架 |
16 |
1 |
LG831G.10-001 |
|
57 |
51204101114 |
болт |
螺栓 |
2 |
GB/T5783 |
|
|
58 |
51421130115 |
Прокладка |
垫圈 |
4 × 60 |
4 |
GB/T97.1 |
|
59 |
30861000156 |
Сварка фиксаторного блока |
固定杆焊合 |
1 |
LG855.10.01.08.01 |
|
|
60 |
51512092301 |
Разводной штифт |
开口销 |
2 |
GB/T91 |
|
|
61 |
30890900232 |
Сварка вала штифта |
销轴焊合 |
2 |
LG853.10.08 |