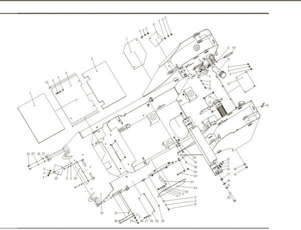
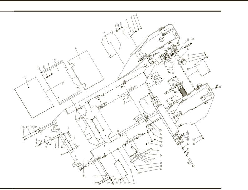
Frame System

 

Parts number

Part Description

Specification

Qty

Remarks

I

tem

1

LG308.10-014

 

Floor gasket

 

1

 

2

GB/T97.1

10

Washer

 

52

 

3

GB/T93

10

Washer

 

52

 

4

GB/T5783-2000

M10X25

Bolt

 

18

 

5

LG307.10-002

 

Pedal

 

1

 

6

LG308.10-015

 

Sponge

 

1

 

7

LG307.10-003

2

Bottom cover plate Ⅱ

 

1

 

8

LG307.10-004

 

Rear cover Ⅰ

 

3

 

9

LG308.10-007

 

Flange cover

 

2

 

10

GB/T5783-2000

M10X20

Bolt

 

28

 

11

GB/T70.1-1985

HM5X16

Screw

 

8

 

12

LG816.13.08.02

 

Air filter

 

2

 

13

LG308.10-017

2

Rear cover Ⅱ

 

2

 

14

LG308.10.04

 

Filter assembly

 

1

 

15

LG308.10.03

 

Flange cover weldment

 

1

 

16

LG308.10.06

 

Middle hood assembly

 

1

 

17

GB/T6170-2000

 

Nut

 

4

 

18

GB/T93-1987

20

Washer

 

2

 

19

GB/T96.1-2002

20

washer

 

2

 

20

GB/T5782-2000

M20X120

Bolt

 

2

 

21

GB/T5782-2000

M10X30

Bolt

 

4

 

22

GB/T6170-2000

M12

Nut

 

4

 

23

GB/T5783-2000

M12X60

Bolt

 

4

 

24

LG307.10-007

 

Chain Wheel box sealing board

 

2

 

25

LG307.10-005

 

Control plate sealing plate

 

1

 

26

GB/T97.1-2002

8

Washer

 

6

 

27

GB/T93-1987

8

Washer

 

4

 

28

GB/T5783-2000

M8X16

Bolt

 

4

 

29

GB/T6170

M10

Nut

 

10

 

30

LG308.10-012

 

Lock board

 

1

 

31

LG308.10-011

 

Swash pull rod

 

2

 

32

LG308.10.01

 

Frame weldment

 

1

 

33

GB/T5783

M10X45

Bolt

 

2

 

34

LG308.10-002

 

Front block

 

1

 

35

LG308.10-003

1

Bottom cover Ⅰ

 

1

 

36

GB/T5783-2000

M8X30

Bolt

 

4

 

37

LG308.10-001

1

Limit position block Ⅰ

 

2

 

38

LG308.10.05

 

Permeability cap

 

2

 

39

L4MN-14WD

 

Connector

 

4

 

40

LG308.10-013

Φ13X4

Magnet

 

2

 

41

L4HN-24

 

Inner hexagon stopper

 

2

 

42

CDM856E.13Ⅰ.08.04

 

Rectangle oil label

 

1

 

43

GB/T3452.1-2005

`

Washer

 

4

 

44

LG308.10-018

 

Spilling valve bracket

 

1

 

45

H009

1

Tape

 

4