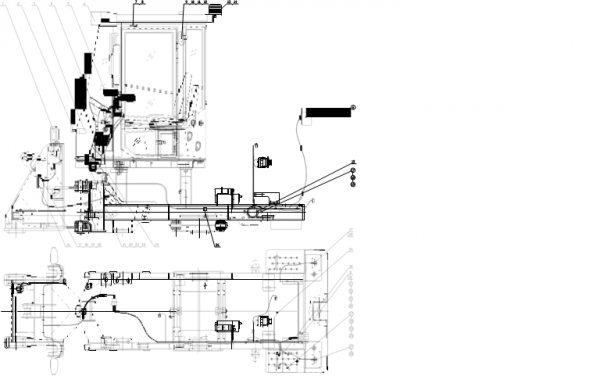
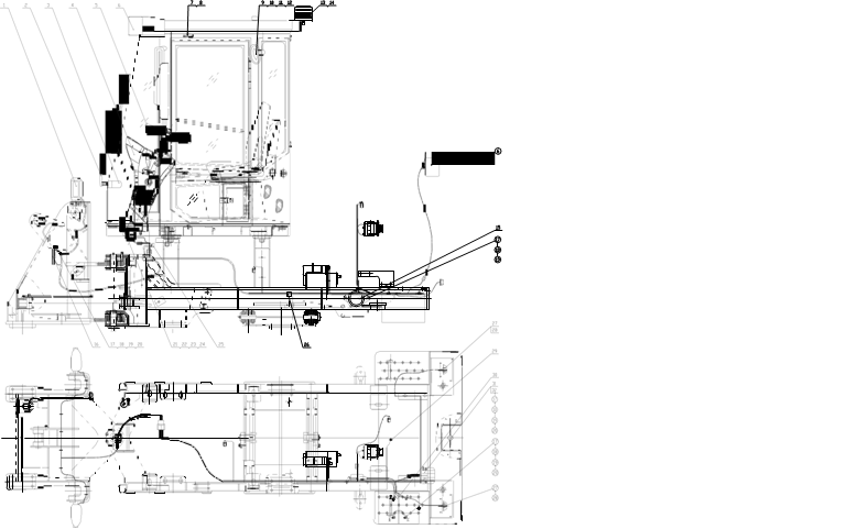
ELECTRICAL SYSTEM CDM816D

Item

Parts number

Parts description

Specification

Qty

Remarks

1

LG8016.15.10

前组合灯

Front combined lamp

 

2

 

2

ZD2332A-65°

雨刮电机

Swiper generator

 

1

 

3

LG520A.26.23

雨刷

Wiper

 

1

 

4

LG816B.15.15

操纵仪表台总成

Instrument panel assembly

 

1

 

5

LG853.06.02.01

方向盘总成

Steering wheel assembly

 

1

 

6

LG816.15.12

后大灯

Rear light

 

4

 

7

LG520A6.26-001

顶棚灯

Ceiling lamp

 

1

 

8

GB/T845

自攻螺钉

Plug screw

ST4.8×19

2

 

9

LG816.15.29

电风扇

Electrical fan

SGF-03A

1

 

10

GB/T5783

螺栓

Bolt

M6×20-8.8

3

 

11

GB/T93

垫圈

Washer

6

3

 

12

GB/T97.1

垫圈

Washer

6

3

 

13

LG520A6.21.08

警示灯

Warning lamp

 

1

 

14

CDM816B.15-007

警示灯线束

Warning lamp harness

 

1

 

15

LG853.15.28

电源总开关

Power switch

 

1

 

16

LG816.15.09

单音盆式电喇叭

Electrical horn

 

1

 

17

GB/T5783

螺栓

Bolt

M8×25-8.8

9

 

18

GB/T93

垫圈

Washer

8

9

 

19

GB/T97.1

垫圈

Washer

8

9

 

20

GB/T6170

螺母

Nut

M8-8

7

 

21

GB/T5783

螺栓

Bolt

M10×30-8.8

4

 

22

GB/T93

垫圈

Washer

10

4

 

23

GB/T97.1

垫圈

Washer

10

4

 

24

GB/T6170

螺母

Nut

M10-8

4

 

25

LG853.15.30

制动灯开关

Brake light switch

 

1

 

26

LG853.15-001

尼龙扎带

Nylon belt

ZD250×5

20

 

27

LG30F.15.17

三色灯216

Three color combined lamp

 

2

 

28

GB/T818

螺钉

Plug screw

M4×8-8.8

4

 

29

LG853.15.27

低压报警开关

Low pressure alarm switch

 

1

 

30

LG816.15.26

蓄电池

Battery

 

2

 

31

CDM855E.15Ⅱ.20

倒车蜂鸣器

Buzzer

JWL-FM212/24V

1

 

32

CDM816D.15Ⅰ-001

蜂鸣器安装板

Plate

 

1